0
  • Acheter Du neuf
Dans un rayon de
Budget
Mini
Maxi

    Faites estimer votre bien par un professionnel

    Estimer votre bien
    4 Pièce(s)
    3 Chambre(s)

    Maison Neuve 3 chambres proche commerces et commodités

    Belin-Béliet (33830)
    Réf : CSOMA40000025

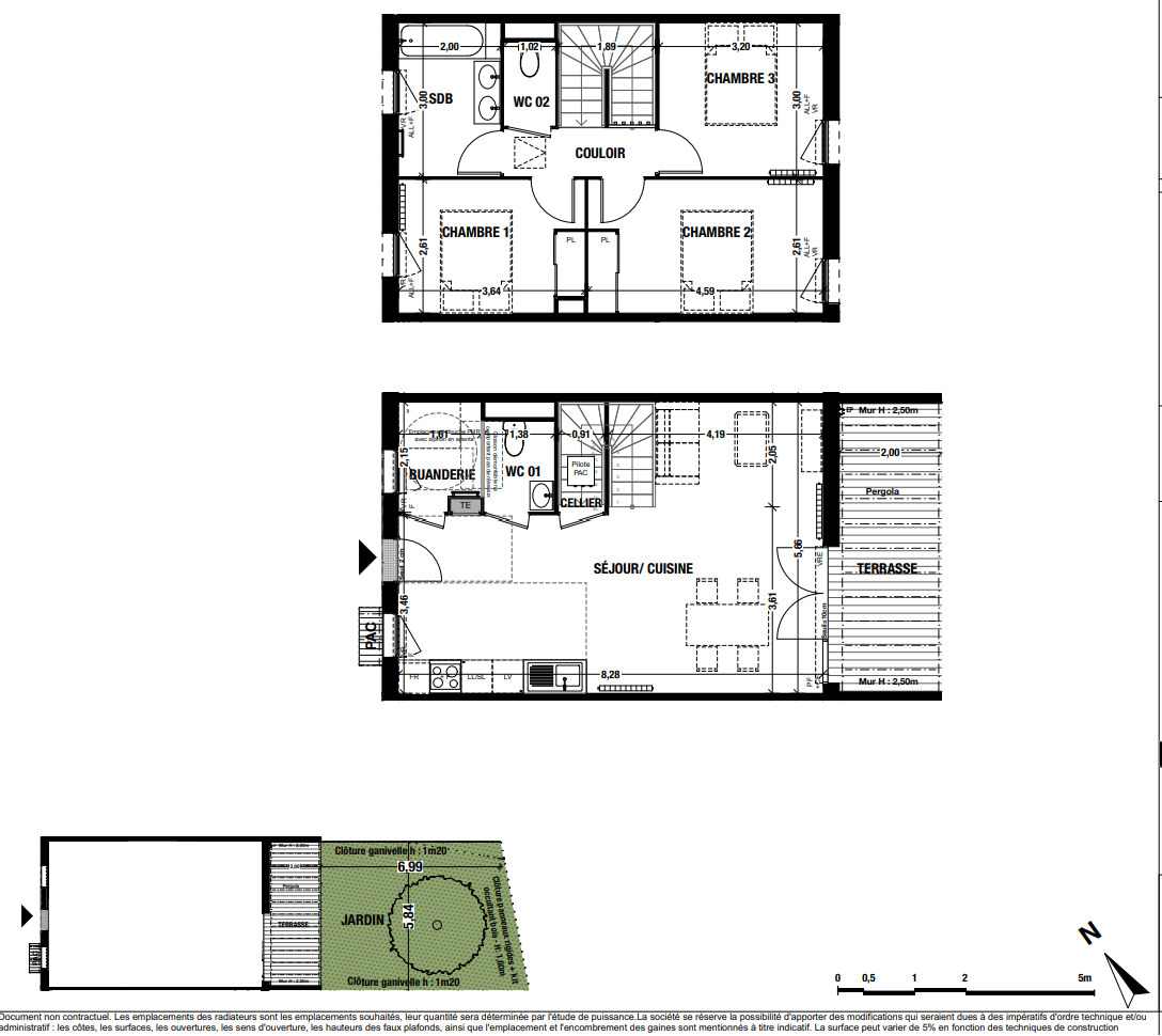
    Maison à étage comprenant 3 chambres. Sur deux niveaux, cette maison neuve, qui sortira de terre en 2025 offre tout le confort moderne lié aux normes 2020.

    Elle se compose de 3 chambres, une salle de bains, toilettes à l'étage et pièce de vie, toilettes, Buanderie en rez de chaussée. Idéalement exposée, la pièce de vie débouche sur une terrasse et un jardiun bien fermé.

    Deux places de parkings sont également vendues avec ce bien.

    Prestations de qualité : peinture lisse aux murs, placards aménagées, Pompe à chaleur, volets roulants motorisés....

    A découvrir

    Ce bien vous intéresse ?
    Fieldset par défaut
    Fieldset par défaut
    Validation

    * Champs obligatoires

    Contacter l'agence
    Validation
    Les informations recueillies sur ce formulaire sont enregistrées dans un fichier informatisé par La Boite Immo agissant comme Sous-traitant du traitement pour la gestion de la clientèle/prospects de l'Agence / du Réseau qui reste Responsable du Traitement de vos Données personnelles. La base légale du traitement repose sur l'intérêt légitime de l'Agence / du Réseau. Elles sont conservées jusqu'à demande de suppression et sont destinées à l'Agence / au Réseau. Conformément à la loi « informatique et libertés », vous disposez des droits d’accès, de rectification, d’effacement, d’opposition, de limitation et de portabilité de vos données. Vous pouvez retirer votre consentement à tout moment en contactant directement l’Agence / Le Réseau. Consultez le site https://cnil.fr/fr pour plus d’informations sur vos droits. Si vous estimez, après avoir contacté l'Agence / le Réseau, que vos droits « Informatique et Libertés » ne sont pas respectés, vous pouvez adresser une réclamation à la CNIL. Nous vous informons de l’existence de la liste d'opposition au démarchage téléphonique « Bloctel », sur laquelle vous pouvez vous inscrire ici : https://www.bloctel.gouv.fr Dans le cadre de la protection des Données personnelles, nous vous invitons à ne pas inscrire de Données sensibles dans le champ de saisie libre.
    Ce site est protégé par reCAPTCHA, les Politiques de Confidentialité et les Conditions d'Utilisation de Google s'appliquent.

    En Bref

    Code postal 33830
    Surface habitable (m²) 86 m²
    Surface loi Carrez (m²) 86 m²
    Nombre de chambre(s) 3
    Nombre de pièces 4
    Nombre de niveaux 2
    Nb de salle de bains 1
    Cuisine Américaine
    Mode de chauffage Pompe à chaleur
    Type de chauffage Convecteur
    Format de chauffage Individuel
    Visiophone OUI
    Terrasse OUI
    Murs mitoyens 2
    Nombre de parking 2
    Exposition Sud-Est
    Année de construction 2025
    Terrain piscinable NON
    Terrain arboré OUI

    Infos financières

    Prix de vente 255 900 €
    Les honoraires d'agence seront intégralement à la charge du vendeur  

    Energie

    Energie
    DPE
    GES